Bytové domy
Autor: Vladimír Karfík, Vladimír Kubečka
Liniově řazené objekty tvoří 3 za sebou jdoucí řady ve směru sever - jih v rovinném terénu pravého břehu řeky Dřevnice; od jihu je území vymezeno právě řekou a s ní souběžnou komunikací, od severu pak třídou 2. května; objekty jsou situovány na okraji obytné čtvrti zastavěné baťovskými rodinnými domky.
Jednotlivé objekty jsou třípodlažní podsklepené s plochou střechou, sestaveny z několika sekcí liniově řazených vedle sebe do řad s orientací bytů východ - západ. Sekce jsou podle typu děleny na jižní, střední a severní, jsou obdélníkové dispozice s dvouramenným schodištěm na střední příčnou osu.
V každém patře jsou situovány 2 shodné třípokojové byty - s výjimkou koncových bytů u tzv. jižní sekce, kde jsou byty vždy čtyřpokojové. U koncových bytů tzv. severní sekce je obytný pokoj rozšířen o arkýř se zalomeným oknem, umožňující přístup odpolednímu slunci (prozrazuje vliv severské architektury, která byla tehdy zlínskými architekty studována).
Byty sestávají ze vstupní předsíně, obytného pokoje propojeného s kuchyní - s plně vestavěnou kuchyňskou linkou (orientace na západ), 2 ložnic (orientace na východ), koupelny s wc a chodbičkou s vestavěnou šatnou a úklidovou skříní; z obytného pokoje je přístupný balkon; plocha bytů činí 68,0 m2; čtyřpokojové byty jsou rozšířeny o 1 ložnici (pracovnu) a spíž přístupnou z kuchyně, wc je řešeno samostatně mimo koupelnu.
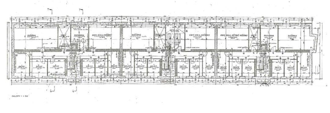
V každém patře byl ze schodišťového prostoru přístupný shoz na odpadky ukončený v suterénu spalovací pecí (z hygienických důvodů zrušeno); v suterénu jsou též situovány větrané zděné sklepní kóje pro každý byt a společné prostory kočárkárny, prádelny a sušárny.
Reliéfy domovních znamení, jež jsou umístěny nad každým vstupem, vytvořili studenti UMPRUM ve Zlíně pod vedením svých profesorů. Většinou jde o motivy přírodní, zvěrokruhu, sociální a profesní (např. kůň, muž, nebezská znamení, štír, orel...).
Aplikace Mobilní rozhlas
Chcete dostávat do svého mobilu či mailu upozornění na blížící se nebezpečí, odstávky, poruchy a výpadky energií, ankety, pozvánky na kulturní a sportovní akce?
© 2026 Magistrát města Zlína
všechna práva vyhrazena
Podněty k webovým stránkám
Kontakt: webmaster@zlin.eu
Podněty k webovým stránkám
Kontakt: webmaster@zlin.eu

Registruj se k odběru novinek
Zaregistrujte svou e-mailovou adresu k pravidelnému odběru aktuálních informací z našeho webu