Bytové domy
Autor: Vladimír Karfík, Vladimír Kubečka
I. ETAPA - r. 1946 - 1949
II. ETAPA - r. 1960
III. ETAPA - r. 1970
V roce 1946 se zahájila výstavba tříetážových obytných domů ve čtvrti Obeciny, které byly přechodem na jinou formu bydlení a vyšší bytový standard. Autorem urbanistického řešení byl Vladimír Kubečka a řešení architektonického, které konstrukcí a vnějším výrazem navazovalo na předválečnou zlínskou bytovou architekturu, byl Vladimír Karfík. Výstavba dvou skupin domů byla součástí cílevědomé regulace města za dodržení příznivých prostorových podmínek životního prostředí i zahradního charakteru města. První domy byly dokončeny v létě 1947 a slavnostně předány jako první nové poválečné byty v Československu. Současně byla uspořádána výstavba vnitřního zařízení bytů, které navrhl V. Palla. Tento typ byl v průběhu dalších let s různými obměnami dispozičními a výrazovými použit ve Zlíně a Otrokovicích. Tak například skupina tříetážových domů stejného typu byla realizována v letech 1948 - 1949 ve čtvrti Zálešná. Jde opět o práci tandemu Kubečka - Karfík.
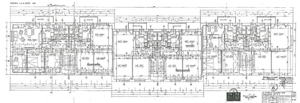
Objekty tvoří 19 za sebou jdoucích řad ve směru sever - jih v mírně svažitém terénu ve východní části města; zastavěné území je ze severu vymezeno hlavní komunikací - třídou T. Bati, z jihu ulicí Příluckou, na níž pak dále navazuje zástavba rodinnými domy.
Jednotlivé objekty jsou třípodlažní podsklepené, sestaveny z několika sekcí liniově řazených vedle sebe do řad s orientací bytů východ - západ. Sekce jsou podle typu děleny na jižní, střední a severní, jsou obdélníkové dispozice s dvouramenným schodištěm na střední příčnou osu.
Dispozice bytů je velmi progresivní. Jde převážně o třípokojové byty o obytné ploše 59 m2 s pracovní kuchyní s plně vestavěnou kuchyňskou linkou, spižní skříní a spalovacím shozem na odpadky. Byty mají dálkové topení. Všechny řemeslné práce byly unifikovány. Zdivo je cihelné, stropy z betonových desek, obvodové zdivo ze spárovaných cihel. Balkóny jsou z vlnitého plechu nebo z perforovaných betonových desek.
V každém patře jsou situovány 2 shodné třípokojové byty - s výjimkou koncových bytů u tzv. jižní sekce, kde jsou byty vždy čtyřpokojové. U koncových bytů tzv. severní sekce je obytný pokoj rozšířen o arkýř se zalomeným oknem, unožňující přístup odpolednímu slunci (prozrazuje vliv severské architektury, která byla tehdy zlínskými architekty studována).
Byty sestávají ze vstupní předsíně, obytného pokoje propojeného s kuchyní - s plně vestavěnou kuchyňskou linkou (orientace na západ), 2 ložnic (orientace na východ), koupelny s wc a chodbičkou s vestavěnou šatnou a úklidovou skříní; z obytného pokoje je přístupný balkon; plocha bytů činí 68,0 m2; čtyřpokojové byty jsou rozšířeny o 1 ložnici (pracovnu) a spíž přístupnou z kuchyně, wc je řešeno samostatně mimo koupelnu.
V každém patře byl ze schodišťového prostoru přístupný shoz na odpadky ukončený v suterénu spalovací pecí (z hygienických důvodů zrušeno); v suterénu jsou též situovány větrané zděné sklepní kóje pro každý byt a společné prostory kočárkárny, prádelny a sušárny.
Reliéfy domovních znamení, jež jsou umístěny nad každým vstupem, vytvořili studenti UMPRUM ve Zlíně pod vedením svých profesorů. Většinou jde o motivy přírodní, zvěrokruhu, sociální a profesní (např. včela, žena, květina, pavouk...).
Aplikace Mobilní rozhlas
Chcete dostávat do svého mobilu či mailu upozornění na blížící se nebezpečí, odstávky, poruchy a výpadky energií, ankety, pozvánky na kulturní a sportovní akce?
© 2026 Magistrát města Zlína
všechna práva vyhrazena
Podněty k webovým stránkám
Kontakt: webmaster@zlin.eu
Podněty k webovým stránkám
Kontakt: webmaster@zlin.eu

Registruj se k odběru novinek
Zaregistrujte svou e-mailovou adresu k pravidelnému odběru aktuálních informací z našeho webu