Občanské stavby
Autor: akad.arch. Miloš Totušek
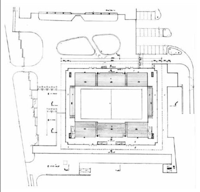
Sportovní hala pro míčové hry je situována severně od Zimního stadionu a spolu s ní tvoří jeden významný sportovní komplex ve středu města, který je architektonicky propojen pomocí společných nástupů a oddechového atria. Vlastní hala je osazena na terénním zlomu a výškového rozdílu bylo použito pro osazení tribun a hrací plochy. Provozně je hala diferencována, důsledně jsou odděleni diváci a aktivní sportovci. V přízemí jsou klubovny, 8 hráčských šaten s příslušenstvím, 10 pokojů pro ubytování, byt správce a technické zázemí. Divácké patro obsahuje vstupní halu s šatnou a bufetem, espresso, sklady a sociální zařízení. Na nejvyšší úrovni je hala 24 x 48 metrů a tribuny o kapacitě 3 200 diváků. Z konstrukčního hlediska je podnož z montovaného skeletu, střešní konstrukci tvoří trubkový rošt o rozponu 48 m s 9 m převislými konci, osazené na 4 ocelových pilířích, střešní plášť je z trapézových plechů. Obvodový plášť tvoří WEMA profily s floatovým zrcadlovým sklem.
Aplikace Mobilní rozhlas
Chcete dostávat do svého mobilu či mailu upozornění na blížící se nebezpečí, odstávky, poruchy a výpadky energií, ankety, pozvánky na kulturní a sportovní akce?
© 2026 Magistrát města Zlína
všechna práva vyhrazena
Podněty k webovým stránkám
Kontakt: webmaster@zlin.eu
Podněty k webovým stránkám
Kontakt: webmaster@zlin.eu

Registruj se k odběru novinek
Zaregistrujte svou e-mailovou adresu k pravidelnému odběru aktuálních informací z našeho webu