Rodinné domy
Autor: akad.arch.Zdeněk Plesník
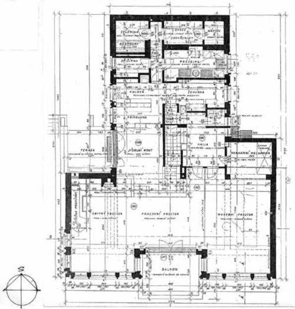
Vyjímečná vila pro vyjímečnou osobnost. Tak by se dala charakterizovat stavba, kterou pro známého cestovatele ing. Jiřího Hanzelku navrhl v roce 1956 architekt Zdeněk Plesník. Dispozičně se jedná o funkcionalistickou vilu ,s volným půdorysem reflektujícím pražské vily třicátých let. Dům je posazen do prudkého severojižního svahu s výškovým rozdílem téměř 7 m na délku stavby, čehož autor využil vytvořením částečného suterénu, přízemí s balkony a terasami a ustupujícím ložnicovým patrem, z něhož je přístup na terén v horní úrovni.
V dnešní době dům slouží jako dětský stacionář a z těchto důvodů byly na domě provedeny zásahy, které narušily původní koncepci architekta Plesníka.
Aplikace Mobilní rozhlas
Chcete dostávat do svého mobilu či mailu upozornění na blížící se nebezpečí, odstávky, poruchy a výpadky energií, ankety, pozvánky na kulturní a sportovní akce?
© 2026 Magistrát města Zlína
všechna práva vyhrazena
Podněty k webovým stránkám
Kontakt: webmaster@zlin.eu
Podněty k webovým stránkám
Kontakt: webmaster@zlin.eu

Registruj se k odběru novinek
Zaregistrujte svou e-mailovou adresu k pravidelnému odběru aktuálních informací z našeho webu