Veřejné architektonické soutěže - výsledky
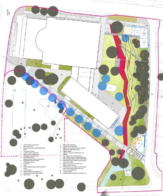
Stávající prostor mezi Městským divadlem Zlín a ulicí Potoky je pozůstatkem nedokončených koncepcí. Území historicky
zastavěné hospodářskými stavbami prošlo zásadní proměnou v souvislosti s výstavbou objektu Městského divadla
(Divadla Pracujících) v 60. letech. Do stavebního souboru divadla byla zakomponována budova hasičské zbrojnice
z počátku 40. let. Až na výjimku objektu č.p. 560 byla veškerá ostatní starší zástavba odstraněna. Plocha byla upravena pouze zčásti, nástupní prostor obsahuje umělecky ztvárněnou zeď a kašnu. Součástí úprav bylo také zatrubnění Kudlovského potoka, jehož skutečná poloha je odhalitelná jen při pohledu do katastrální mapy (p. č. 3561/1 k. ú. Zlín). V nedávné době bylo uvažováno s umístěním souboru bytových domů podél ulice Potoky. Od záměru bylo upuštěno ve prospěch rozvoje veřejných prostranství. V současné době jde o nepříliš využívaný prostor bez zjevného účelu.
Hlavní cíle:
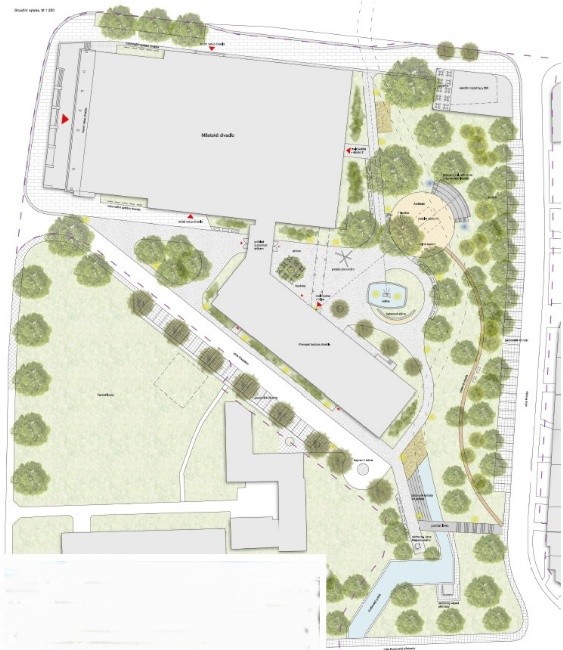
- kvalitní parkový veřejný prostor s významným podílem stromů, místo setkávání,
- důraz na možnosti kulturního využití s fixním pódiem a hledištěm,
- prostor pro pořádání kulturních akci pod širým nebem,
- organizace dopravy,
Cílem soutěže bylo nalezení kvalitního návrhu veřejných prostranství obklopujících soubor budov divadla. Stěžejním
motivem je tedy prostředí divadla, jemu adekvátní prostor a možnost část s divadlem souvisejících aktivit realizovat
v exteriéru. Část území okolo ulice Divadelní je významně provozně i pohledově exponovaná, zatímco část před
východní fasádou divadla je nyní zanedbaná a nekoncepční. Území je zatíženo statickou dopravou.
Odlišný charakter území bude dán možností pořádání kulturních akcí pod širým nebem. K tomu bude uzpůsobena část
území tak, aby bylo možno umístit zpevněné pódium o ploše cca 5x4 m a v návaznosti na něj hlediště o komorní
kapacitě cca 80 návštěvníků. Převážná část řešeného území by měla zůstat k dispozici pěším s důrazem na zachování
vzrostlých stromů.
Řešit bude třeba také dopravu, zadání předpokládá vymístění parkování z okolí kašny do jiných ploch a to i za cenu
redukce celkové kapacity parkovacích stání. Kolmá parkovací stání na ulici Potoky bude potřeba v co největším rozsahu
zachovat. Nově pojednáno bude prostorové i provozní řešení ulice Divadelní.
Výsledky:
1. cena 250 000,- Kč
Účastníci/autoři: Ing. Pavel Krampla
Ing. arch. Radek Talaš
2. zvýšená cena 200 000,- Kč
Účastník/autor: Ing. Rastislav Balog
Autor: Ing. Lýdia Šušlíková
Spolupracovníci: Ing. Ján Augustín
Ing. Alžběta Římská
Ing. Radim Klepárnik
Konzultant: Ing. Václav Babka
odměna 25 000,- Kč
Účastník/autor: Ing. arch. Pavel Martinek
Spolupráce (vizualizace): Pavel Vinter
odměna 25 000,- Kč
Účastník/autor: Ing. arch. Pavel Šiška
Aplikace Mobilní rozhlas
Chcete dostávat do svého mobilu či mailu upozornění na blížící se nebezpečí, odstávky, poruchy a výpadky energií, ankety, pozvánky na kulturní a sportovní akce?
© 2026 Magistrát města Zlína
všechna práva vyhrazena
Podněty k webovým stránkám
Kontakt: webmaster@zlin.eu
Podněty k webovým stránkám
Kontakt: webmaster@zlin.eu

Registruj se k odběru novinek
Zaregistrujte svou e-mailovou adresu k pravidelnému odběru aktuálních informací z našeho webu