Průmyslové stavby
Autor: akad.arch. Z. Plesník, ing.arch. K. Krčmář, ing.arch. I. Přikryl, ing.arch. O. Šlesinger
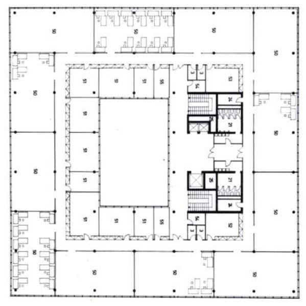
Sedmipodlažní provozní budova projektové organizace s celostátní působností je založena na čtvercovém půdoryse (72x72 m) s vnitřním átriem a velkoprostorovými kancelářemi. Mimo čtyř etáží projekčních pracovišť jsou zde prostory administrativní složky, jídelna s bufetem, kinosál, knihovna, fotooddělení, propagace, chemická laboratoř, centrální šatny, archiv, dílny údržby, garáže atd. Objekt, realizovaný zlínskými Průmyslovými stavbami je založen na modulové síti 6x6 metrů s ocelovými sloupy a zvedanými stropy. Předsazená, volně zavěšená fasáda dává objektu vzdušnost a lehkost. Ne nepodstatná je i jeho urbanistická poloha v blízkosti Kolektivního domu a městské přehrady.
Aplikace Mobilní rozhlas
Chcete dostávat do svého mobilu či mailu upozornění na blížící se nebezpečí, odstávky, poruchy a výpadky energií, ankety, pozvánky na kulturní a sportovní akce?
© 2026 Magistrát města Zlína
všechna práva vyhrazena
Podněty k webovým stránkám
Kontakt: webmaster@zlin.eu
Podněty k webovým stránkám
Kontakt: webmaster@zlin.eu

Registruj se k odběru novinek
Zaregistrujte svou e-mailovou adresu k pravidelnému odběru aktuálních informací z našeho webu