Občanské stavby
Autor: Ing.arch. D. Nová
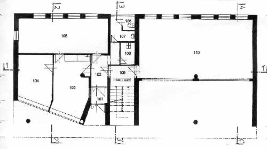
Auditorská a daňová kancelář Alois Berka realizovala na třídě T. Bati dvou, resp. třípodlažní objekt. V přízemí je umístěn vstup, kancelář ředitele se sekretariátem a zasedací místností a garáže. Mezi kanceláří a garáží je jádro se schodištěm a hygienickým zařízením, které se opakuje ve všech třech podlažích. Ve 2. nadzemním podlaží jsou dvě velké kanceláře. 3. nadzemní podlaží je jen částečné s kanceláří a terasou. Důsledně bílá kubická hmota je oživena jednak zkosením západní fasády třípodlažní části v 1. a 3. nadzemním podlaží, jednak nevysokou stanovou střechou nad vyšší částí budovy.
Aplikace Mobilní rozhlas
Chcete dostávat do svého mobilu či mailu upozornění na blížící se nebezpečí, odstávky, poruchy a výpadky energií, ankety, pozvánky na kulturní a sportovní akce?
© 2026 Magistrát města Zlína
všechna práva vyhrazena
Podněty k webovým stránkám
Kontakt: webmaster@zlin.eu
Podněty k webovým stránkám
Kontakt: webmaster@zlin.eu

Registruj se k odběru novinek
Zaregistrujte svou e-mailovou adresu k pravidelnému odběru aktuálních informací z našeho webu